LOKALIZACJA

NUMER BUDYNKU POWIERZCHNIA CAŁKOWITA POWIERZCHNIA UŻYTKOWA POWIERZCHNIA DZIAŁKI CENA M2 CENA DOSTĘPNOŚĆ
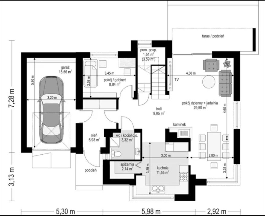
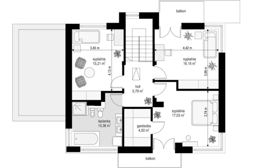
1 158,55 M2 139,91 M2 OKOŁO 760 M2 11 786,15 1.649.000 ,- DOSTĘPNY
2 158,55 M2 139,91 M2 OKOŁO 760 M2 11 786,15 1.649.000,- DOSTĘPNY
3 158,55 M2 139,91 M2 OKOŁO 760 M2 11 786,15 1.649.000 ,- DOSTĘPNY
4 158,55 M2 139,91 M2 OKOŁO 760 M2 11 786,15 1.649.000 ,- DOSTĘPNY

Standard Deweloperski

  • Budynek posadowienie: ławy żelbetowe, szalowanie na warstwie chudego betonu.
  • Fundamenty: z bloczków betonowych.
  • Ściany zewnętrzne: z pustaków ceramicznych Porotherm gr. 25 cm szlifowany na klej systemowy.
  • Ściany Wewnętrze: działowe Porotherm gr. 11,5 cm, nośne z pustaków ceramicznych Porotherm gr. 25 cm.
  • Kominy do kominka: Systemowy z pustaków SCHIEDEL.
  • Przewody wentylacyjne – z pustaków keramzytowych.
  • Wywiewki wentylacyjne – przewody zakończone kominkami wentylacyjnymi.
  • Schody monolityczne żelbetowe
  • Nadproża- gotowe prefabrykowane
  • Stropy- nad parterem - strop żelbetowy, nad I piętrem - drewniany
  • Dach- konstrukcja drewniana imprenowana klasa C30, folia dachowa DELTA-XX plus, pełne deskowanie, pokrycie dachu panel na rąbek kolor antracyt.
  • Izolacje papa termozgrzewalna podkładowa 1x na ławach fundamentowych, 2x ściana fundamentowa, ocieplenie ścian fundamentowych – styrodur XPS gr. 15cm z izolacją przeciwwilgociową 2x od wewnątrz i zewnątrz.
  • Ocieplenie ścian zewnętrznych – styropian grafitowy Swissporr gr. 18 cm λ 0,032
  • Izolacja podłogi na gruncie – styropian twardy EPS 100- 0,036.
  • Elewacja: tynk silikonowy-silikonowy firmy Ceresit w kolorze białym i szarym, na fragmentach okładzina włóknocementowe drewnopodoobne, bonie. 
  • Okna, parapety, drzwi-
    • okna PCV sześciokomorowe trzy-szybowe profil VEKA,
    • parapety zewnętrzne z blachy w kolorze okien.
    • Drzwi wejściowe stalowe, ciepłe z doświetleniem Gerda lub Wikęd.
  • Brama garażowa segmentowa firmy Wiśniowski.
  • Instalacje wewnętrzne:
    • okablowanie do instalacji elektrycznej wraz z tablicą rozdzielczą z wyposażeniem; okablowanie do instalacji alarmowej, telefonicznej, internetowej i telewizyjnej (bez osprzętu), domofon;
    • instalacja wodno-kanalizacyjna;
    • instalacja centralnego ogrzewania z wyprowadzeniem pod grzejniki.
    • rozporowadzona instalacja rekuperacji - bez osprzętu
  • Ogrzewanie budynku:
    • Parter: ogrzewanie podłogowe wodne,
      • grzejnikowe w garażu, WC
    • Piętro: ogrzewanie podłogowe wodne,
      • grzejnikowe  w łazience.
  • Kotłownia: pompa ciepła Hitachi z buforem i zasobnikiem ciepłej wody. 

    Wnętrze budynku

  • Ściany: tynk gipsowy-maszynowy Dolina Nidy Zeta, Knauf Diamant lub podobny w pomieszczeniach wilgotnych (łazienki, kotłownia).

      W innych pomieszczeniach tynk gipsowy-maszynowy Dolina Nidy Alfa, Knauf MP75 kat. III lub           gipsowo-wapienny Alpol AG T32.

  • Schody strychowe ciepłe, drabinkowe Fakro

 

    Infrastruktura osiedla:

    ogrodzenie, kostka, drzewa, brama wjazdowa automatyczna, furtka elektrozamek, videofon. 

Kameralne osiedle

4 domów jednorodzinnych

 

Dziekanów Leśny ul. Adama Asnyka 35

 

 

 

 

 

 

 

Skontaktuj się z nami już dziś!

Kontakt